idéal pour promoteur: maison à rénover
Suisse, Gruyère | Epagny
Description
Référence:
M-25-004
Surface du terrain:
510 m2
Style:
Rustique
État:
A rafraîchir
Description
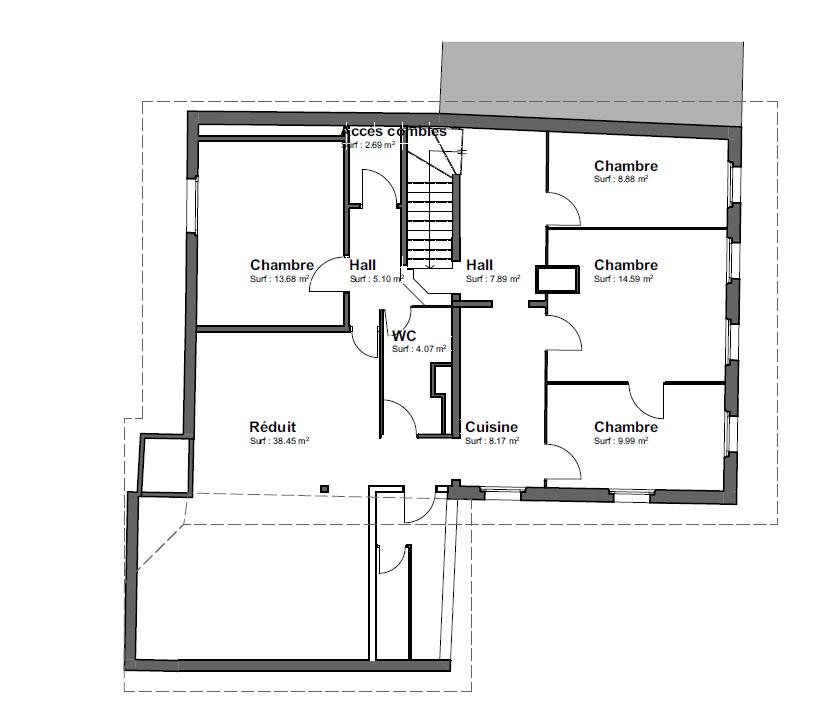
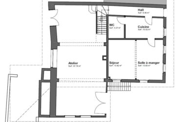
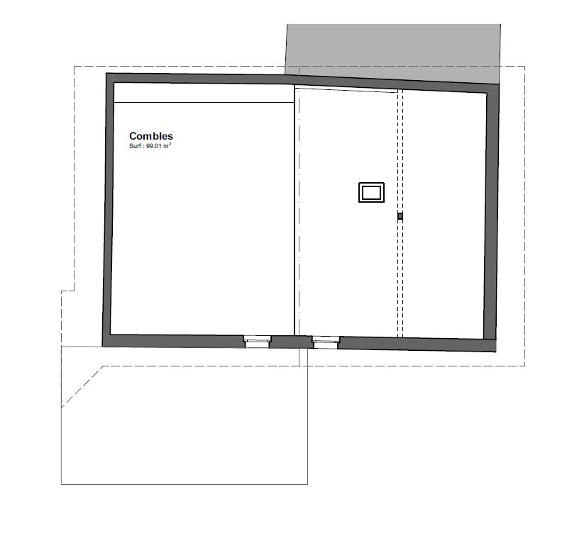
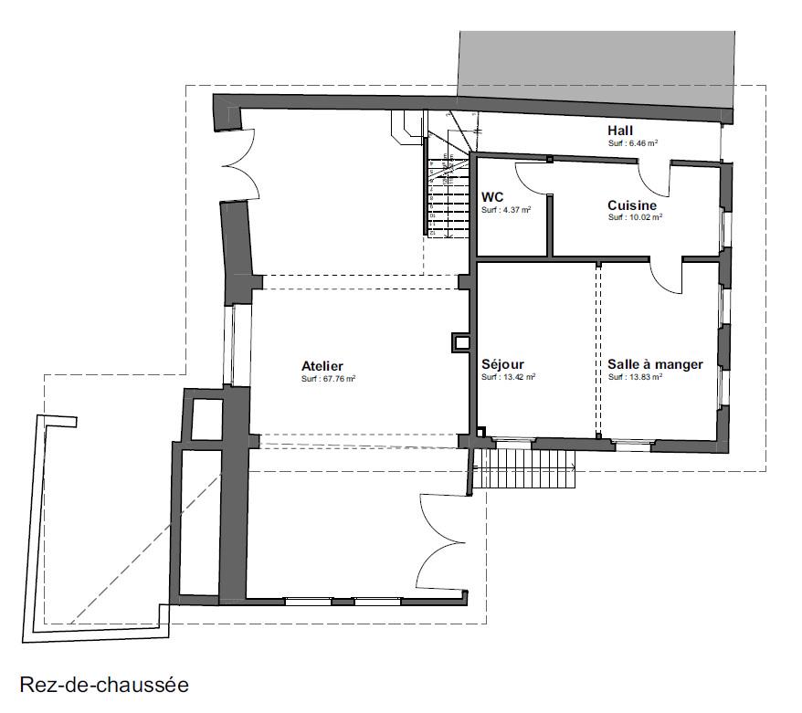
Située au pied de la colline de Gruyères, cette maison villageoise nécessiterait quelques travaux. Bien qu'habitable en l'état (actuellement louée), elle pourrait être transformée en plusieurs appartements. Deux études ont déjà été réalisées en ce sens et font partie intégrante du prix de vente (plans en dwg). En l'état, la maison est divisée en deux logements et un grand atelier (La distribution est visible sur les plans).
Proche de toutes les commodités, voici les principales caractéristiques de la parcelle:
Type de zone: zone village
IBUS: 0.9
IOS: 0.5
Parcelle de 510 m2
Gruyères avec son fort potentiel touristique, constitue un avantage non négligeable pour ce projet. Que cela soit pour de l'habitation propre ou pour de la location, les biens sont très demandés dans cette région.
N'hésitez pas à nous contacter pour une présentation détaillée du dossier ou pour une éventuelle visite.
Adresse
1663 Epagny
Sur la carte
CHF 790'000.-
Agent immobilier
Pascal GRANGIER
Contactez le courtier
